Rendering © CHYDUK & CHMIJO

 

BAGLEY VISION
Detroit, MI

Client: Tarun Kajeepeta, Tanner Waterstreet, Don Tappan
Design: CHYDUK + CHMIJO

Bagley Vision reinvigorates a Corktown warehouse built in the 1920s for mixed-use programming, and borrows a name from a previous optical company tenant. Housing a range of programs for over a century in the historic Corktown neighborhood, it was important to the design team to take cues from the original building parti, maintaining the expression of the warehouse and interior timber frame construction, all while increasing access to daylight and views with the introduction of a new green alley. Serving a growing neighborhood, Bagley Vision will offer over 9,000 sf of ground floor commercial space, a publicly accessible alley, and 14 residential units.

 
 
 

A historic aerial image (right) contextualizes the building within the greater Corktown neighborhood, highlighting its adjacency to two of Detroit’s most exciting redevelopments: Michigan Central Station and the Joe Louis Greenway.

Historic aerial image at the western edge of Corktown.

 
 
 

Image © CHYDUK

The building slowly became an ad hoc collage of various tenants and programs, which is represented physically in the facade. Although the original intent was to preserve the entirety of the original masonry facade, it was demolished and replaced due to structural concerns. Preservation efforts were then focused on the interior timber structure, which will be expressed throughout the residential units.

 
 

Floor Plan © CHYDUK & CHMIJO

On the ground floor, commercial tenants have street-facing storefronts and direct access to a green alley, a space of respite that’s publicly accessible. Set within a dense urban environment, it maintains access to the outdoors, as something cherished by Detroiters.

Rendering © CHYDUK & CHMIJO

 
 

Landscape section by Julie Bargmann. Image © D.I.R.T. Studio

Working collaboratively with landscape architect Julie Bargmann, the 20-foot-wide alley at the north side of the building was transformed from a dead-end service area to a pedestrian throughway that connects 14th Street with the neighborhood’s public alley beyond. Using furniture elements that range in height from bench to standing bar, a series of outdoor rooms follow the rhythm of the facade, providing each tenant with space beyond the building’s enclosure. Birch trees were selected for the alley as slender, fast-growing, vibrantly colored throughout the seasons, and conducive to northern light.

 
 

Rendering © CHYDUK & CHMIJO

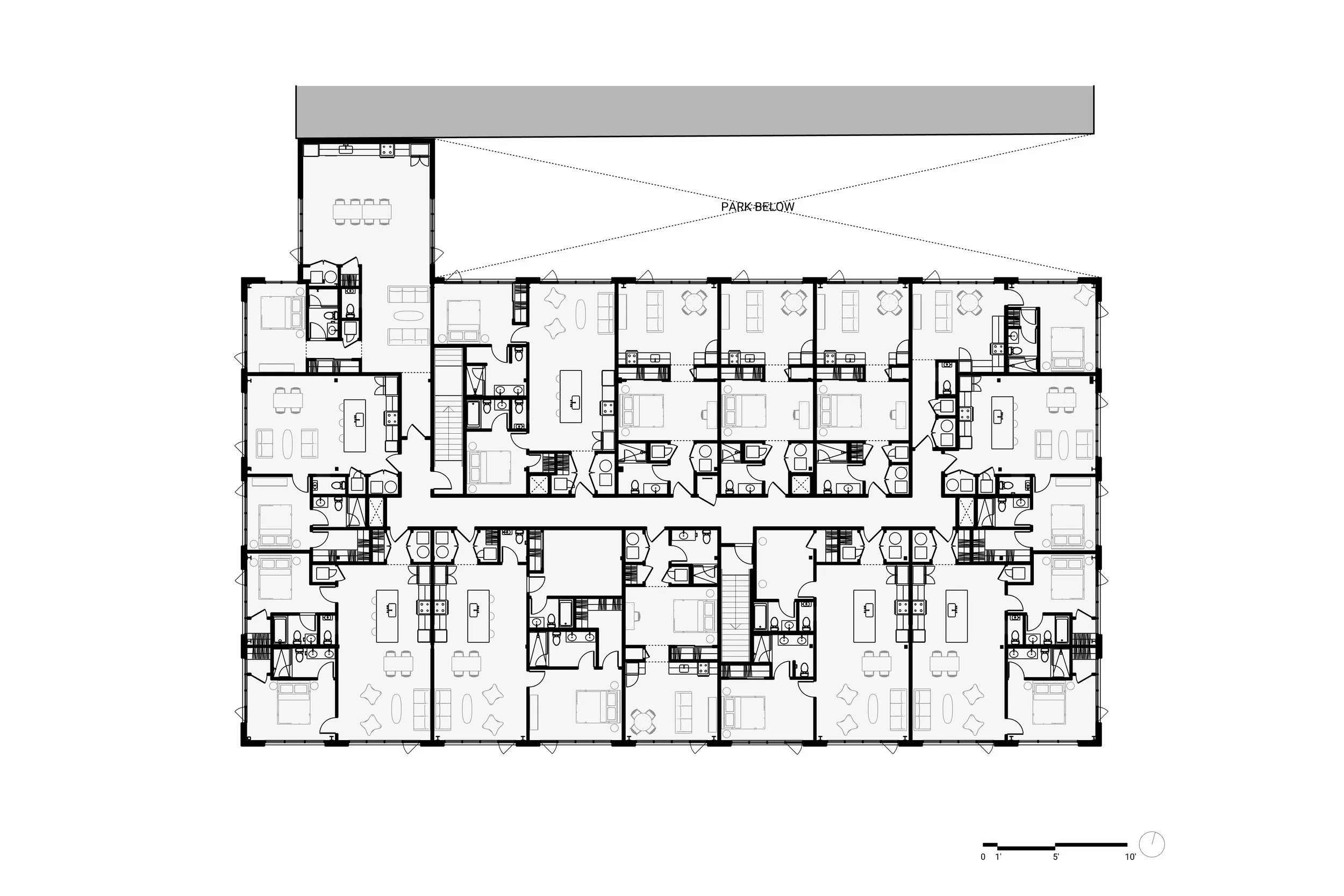
Floor Plan © CHYDUK & CHMIJO

On level 2, every residential unit—ranging from studios to 2 bedrooms—embraces daylight and views with a double-height storefront facade. The rendering (left) depicts the newly planted single stem birch trees at the alley rising to greet occupants.

 
 

project data

Location: 2150 Bagley Street, Detroit, MI

Size: 24,500 sf

Status: Design Complete, Construction in Progress

DESIGN & CONSTRUCTION TEAM

Design Architect: CHYDUK & CHMIJO

Architect of Record: Studio BD

Civil Engineer: Nowak & Fraus Engineers

MEP Engineer: MA Engineering

Structural Engineer: SJW Engineering

Landscape Design: Julie Bargmann, D.I.R.T. Studio

Contractor: Artisan Contracting

Photography: As noted