SATURN COFFEE
Detroit, MI

Client: Chris Welch & Sarah Hall-Welch
Design: CHYDUK + CHMIJO

Designed as a vibrant, bold atmosphere for their new 750-square-foot space in the New Center neighborhood of Detroit, Saturn Coffee embodies the client's existing branding with bright colors throughout. Introducing radiata pine plywood and stainless steel for fixed millwork elements that wrap the space, these combine with custom seating elements—a bench, custom two-top tables, and a large custom communal table—for a space that feels smooth and seamless. Orange splatter paint that doubles as a high durability finish, bright yellow Emeco chairs, and a green stained plywood table offer playful, space-inspired color pops.

 
 
 

Tucked into the ground floor of a 1920s Albert Kahn apartment building, Saturn Coffee offers a bright contrast to the historic context of the neighborhood.

 
 

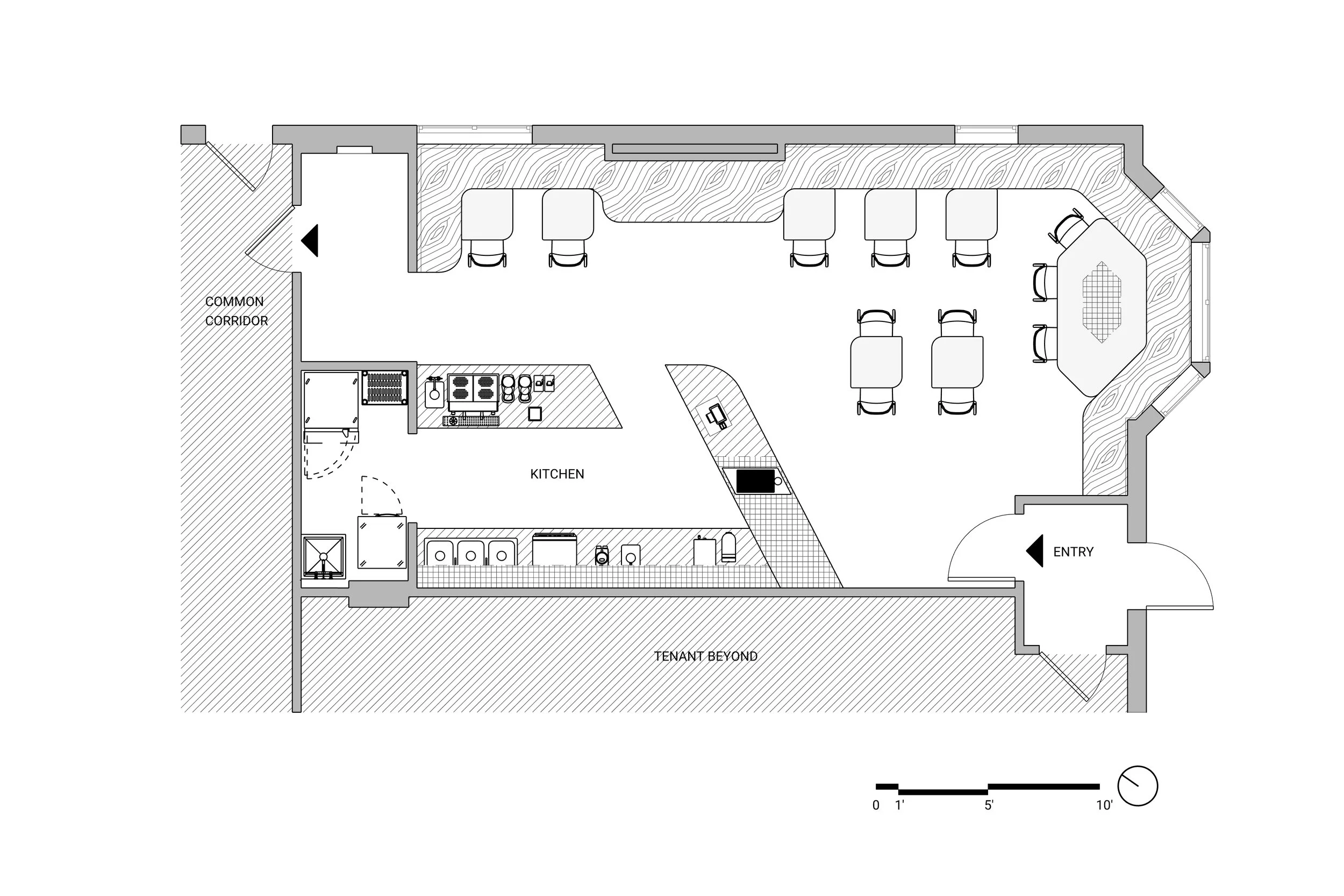
Floor plan © CHYDUK + CHMIJO

 
 

"Chelsea and Chris took our initial design concepts and brought them to life with feasible, buildable ideas. Through their articulation of design options and a collaborative approach, we arrived at a final design we're thrilled with. As first time business owners, it was amazing to have partners that helped us through the whole process and made it easy for us."

—chris WELCH & sarah HALL-welch, owners of saturn coffee

 
 
 
 
 

Working within clear brand guidelines, including a specific color palette, the design team embraced the fun-loving energy of the clients and their desire to create an inclusive space at the heart of the neighborhood.

High durability “scuff master” paint surrounds the coffee bar, adding texture and color.

Surfing Cowboy Studio led green stain tests for the communal coffee table.

Aluminum egg crate ceiling tiles were used throughout the space for shelving and the hanging installation above the communal table.

 
 

PROJECT DATA

Website: Saturn Coffee

Location: 700 Seward Avenue, Suite 2, Detroit, MI

Size: 750 sf

Status: Completed Fall 2025

DESIGN & CONSTRUCTION TEAM

Design Architect: CHYDUK and CHMIJO

Millwork & Furniture Buildout: Surfing Cowboy Studio

Metalwork: Detroit Metal Elements

Kitchen Consulting: JS2 Designs

Art Curation & Installation: Matéria in Spaces

Photography: John D’Angelo, unless otherwise noted